

2020年7月16日我公司聯合中石化銷售公司東營石油分公司開展了,針對加油站油氣回收系統的大氣污染專項提升培訓項目,現場針對加油站油氣回收系統原理及工作流程進行了詳細講解培訓,并結合國家GB 20952標準要求進行了管理提升安排。

本次培訓結合理論知識講解及現場實操講解,兩個環節,對各站遇到的問題進行分析解答。同時結合我公司豐富的加油站檢測檢查經驗,對加油站常見的問題進行了現場解答。


現場油氣回收系統的每一個操作流程,注意事項進行了深入講解。
加油站解決油氣排放問題的必要性


根據 2017 年的相關統計,我國大陸地區對外營業的加油站約有 10 萬座左 右,統計范圍內加油站數量排放前 10 的省級行政區域為山東省、河北省、河 南省、廣東省、江蘇省、四川省、湖南省、湖北省、云南省和遼寧省,主要集 中上我國的中東部地區和長三角、珠三角地區等人口較為稠密、經濟較為活躍 的地區,前 10 省份加油站數量總和占到了全國統計范圍的 57.5%。

加油站油氣回收系統的組成

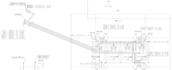
一次油氣回收系統


由油罐車、卸油管、回氣管,球閥及快速接頭組成。汽油油罐車內的油品通過卸油管將油品卸入對應品號的地下油罐內,根據壓力平衡原理,卸油過程中油罐內的油氣通過回氣管回到油罐車內,從而實現卸油過程中的油氣回收。
二次油氣回收系統

集中式:一真空泵多條加油槍,真空泵集中布置
分散式:真空泵在加油機內,多為一泵一槍
由油氣回收槍、反向同軸膠管、拉斷閥、油氣分離接頭、油氣回收真空泵等構成。
工作原理:加油槍從油罐向給車輛車輛加注汽油時,通過真空泵轉動產生一定的真空度,經過加油槍、同軸膠管、油氣分離接頭等油氣回收設備,按照1.0~1.2氣液比的要求,將加油過程中車輛油箱內揮發的油氣通過油氣回收管線收集到地下低標號汽油罐內,從而實現加油過程油氣回收。
三次油氣回收系統

三次油氣回收主要指加油站專用的油氣回收處理裝置,一般加油站會在油罐排放口處安裝油氣回收處理裝置,主要用于收集由于二次回收引起油罐壓力過高所排放的油氣。
加油站正常工作中的油氣主要產生在兩個環節:一是一次油氣回收環節。即收卸作業中,油罐車通過輸油管道向儲罐內卸油,罐內液面上升,形成正壓,罐內飽和油蒸氣通過呼吸閥向大氣中排出油氣(這一過程也稱“大呼吸”);油品在儲存過程中,由于環境溫度的變化,罐內飽和油氣排出或從大氣中補充空氣交替變化向大氣中排出的油氣(也稱“小呼吸”)。二是加油作業環節。加油站在向汽車等設備加油過程中,加油槍注油過程中油箱內的飽和油氣外溢到大氣中。油氣回收裝置的功能是將這兩個環節排出的油氣通過適當的工藝回收下來。
現階段油氣回收裝置,加油站儲罐卸油時通過一次油氣回收進行回收,三次油氣回收裝置只是針對小呼吸和加油作業進行回收,一般常用冷凝+吸附組合工藝。
加油站油氣回收系統參照標準規范
GB20952《加油站大氣污染物排放標準》
GBGB50156《汽車加油加氣站設計與施工規范》



:0546-7760666